$50,000
$65,000
23.1%For more information regarding the value of a property, please contact us for a free consultation.
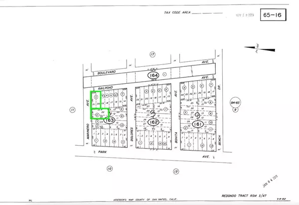
0 Railroad AVE Half Moon Bay, CA 94019
0.25 Acres Lot
Key Details
Sold Price $50,000
Property Type Vacant Land
Listing Status Sold
Purchase Type For Sale
MLS Listing ID ML81897096
Sold Date 08/18/22
HOA Y/N No
Lot Size 0.252 Acres
Property Description
Here is your opportunity to own two parcels for a combined approximately 11,000 square feet and the potential for future buildability. Located on the West side of Highway 1, close to Redondo Beach Dr and within walking distance to the Coastal Trail and beach. This vacant lot is zoned PUD. Buyers to investigate buildability with the City of Half Moon Bay. Purchase includes Railroad Ave Parcel# 065-163-050 (5000+/-) & Marinero Ave Parcel# 065-163-040 (6000+/-).
Location
State CA
County San Mateo
Area 699 - Not Defined
Zoning R10006
Interior
Fireplace No
Exterior
Fence None
Utilities Available None, Water Not Available
Building
Lot Description Level
Sewer Other
Water None
Schools
School District Other
Others
Tax ID 065163040
Financing Other
Special Listing Condition Standard
Read Less
Want to know what your home might be worth? Contact us for a FREE valuation!

Our team is ready to help you sell your home for the highest possible price ASAP

Bought with Joakim Bye Element Real Estate Group






